RUCH 16–18 | Mieszkanie nr 13 | 57,53 m² | 3 pokoje | II piętro | stan deweloperski | Sieradz
Jeśli szukasz mieszkania „do życia”, a nie do kompromisów — to jest dokładnie ten typ układu. 57,53 m² zaprojektowane tak, żeby każdy metr był użyteczny: dwa niezależne pokoje, dzienna strefa z aneksem i wygodny hall, który aż się prosi o porządną zabudowę.
To propozycja dla osób, które chcą mieszkać w mieście komfortowo, mieć wszystko pod ręką i jednocześnie kupić lokal w inwestycji, która robi dobre wrażenie od samego wejścia.
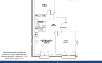
Układ mieszkania (57,53 m²) – praktyczny i elastyczny
- pokój: 15,50 m² – świetna sypialnia albo główny pokój dziecka
- pokój: 11,78 m² – gabinet, druga sypialnia albo pokój gościnny
- salon z aneksem: 18,32 m² – dzienna baza: kuchnia + stół + wypoczynek
- hall: 8,02 m² – miejsce na szafę, szafki i „ogarnięcie” codzienności
- łazienka: 3,91 m²
LOKALIZACJA: SIERADZ — WYGODNIE, BLISKO, PO MIEJSKU
Inwestycja RUCH 16–18 leży w miejscu, które sprzyja codziennemu życiu: szybkie dojścia/dojazdy, sprawne załatwianie spraw i komfort funkcjonowania w mieście bez tracenia czasu na „logistykę”.
CZĘŚCI WSPÓLNE, KTÓRE ROBIĄ RÓŻNICĘ
Tu nie ma przypadkowości: nowoczesne, dobrze doświetlone korytarze, szerokie schody i estetyczne wykończenie sprawiają, że budynek jest przyjazny na co dzień i po prostu wygląda „jak trzeba”. To ważne, bo pierwsze wrażenie robi się raz — a tutaj jest po dobrej stronie.
PARKING MONITOROWANY — OPCJA DLA TYCH, KTÓRZY CENIĄ SPOKÓJ I BEZPIECZEŃSTWO.
Możliwość wykupienia monitorowanego miejsca postojowego na dziedzińcu.
Dopłata: 25 000 zł do ceny mieszkania.
Dodatkowo do użytku właścicieli lokali rowerownia.
STANDARD DEWELOPERSKI I TECHNOLOGIE
Kupujesz lokal w stanie deweloperskim, gotowy pod własną aranżację, z solidną bazą materiałową:
- okna trzyszybowe VEKA
- drzwi wejściowe KMT STAL
- tynki gipsowe KNAUF, posadzki jastrych
- instalacje: elektryczna (bez osprzętu), światłowód/telekomunikacja, RTV, domofon
- ogrzewanie gazowe indywidualne – piec dwufunkcyjny Ferroli (możliwość SMART)
- klimatyzacja inwerterowa (chłodzenie i grzanie)
Warto podkreślić, że koszty utrzymania budynku są zoptymalizowane – Wspólnota Mieszkaniowa EkoWiatr dba o efektywne zarządzanie, dzięki czemu oferta wyróżnia się na tle wielu starszych bloków z wyższymi opłatami stałymi.
Ogrzewanie gazowe indywidualne dla każdego mieszkania to praktyczna przewaga: komfort i możliwość optymalizacji rachunków bez zbiorczych rozliczeń.
DLA KOGO TO MIESZKANIE BĘDZIE IDEALNE?
- dla pary, która chce dodatkowy pokój do pracy
- dla rodziny 2+1 (albo 2+0, ale za to z gabinetem — bardzo rozsądny układ)
- dla inwestora: metraż i rozkład, który dobrze wynajmuje się w długim terminie
Zapraszam do kontaktu i na prezentację — pokażę mieszkanie i opowiem o możliwościach aranżacyjnych.
Skorzystaj z naszej ponad 15-letniej znajomości lokalnego rynku nieruchomości oraz doświadczenia naszych partnerów kredytowych i ubezpieczeniowych. Razem znajdziemy dla Ciebie najkorzystniejsze oferty na rynku
.
Czy to może to być poszukiwane prze Ciebie miejsce? By to sprawdzić wystarczyć sięgnąć po telefon i umówić się na prezentację ![]()
.
Doradca prowadzący ofertę:
Wioleta Piotrowska
kom. 502 666 060
tel. 43 827 50 50
____________________________
PIOTROWSKA NIERUCHOMOŚCI Q
ul. Jana Pawła II 84J, 98-200 Sieradz
(budynek BUMY, obok Galerii Sieradzkiej)
e-mail: biuro@piotrowskanieruchomosci.pl




Uwaga: mogą wystąpić dodatkowe opłaty za założenie księgi wieczystej oraz ustanowienie hipoteki.